THIẾT KẾ, THI CÔNG, LẮP ĐẶT BẾP NHÀ HÀNG - KHÁCH SẠN CARAVELLE SÀI GÒN
Khách sạn Caravelle Saigon là khách sạn đạt tiêu chuẩn quốc tế 5 sao hàng đầu tọa lạc ngay tại trung tâm tài chính, thương mại và giải trí sầm uất của thành phố Hồ Chí Minh, cách Sân bay quốc tế Tân Sơn Nhất chỉ khoảng 8 km đường bộ. Mở cửa vào Giáng Sinh năm 1959 và trải qua hơn 6 thập kỷ hoạt động, Caravelle đã trở thành nơi tổ chức các buổi họp mặt, gặp gỡ thân mật, tiệc dạ vũ sang trọng cũng như là một chứng nhân cho nhiều sự kiện lịch sử, văn hóa, chính trị mang tầm vóc quốc tế tại thành phố Hồ Chí Minh.

Khách sạn Caravelle Sài Gòn - 19 Công Trường Lam Sơn, Quận 1, TP Hồ Chí Minh
Bar Saigon Saigon được bầu chọn là “quán bar tầng thượng nổi tiếng nhất Sài Gòn” và nằm trong Top 10 Địa điểm giải trí thú vị của thành phố, trong chương trình “TPHCM 100 Điều thú vị” do Sở Văn Hóa Thể Thao & Du Lịch trao tặng - mở cửa từ năm 1959 và hiện nay vẫn tọa lạc tại tầng 10 của tòa nhà cũ của khách sạn và vẫn giữ nguyên nét đặc trưng nguyên thủy của nó đến ngày nay. Đây là địa điểm đầu mối trao đổi thông tin của những phóng viên chiến trường thời ấy.

Khu vực Quầy Bar trong khách sạn

Khu tiệc Buffet phục vụ khách trong khách sạn
Với năng lực và sự chuyên nghiệp cũng như chất lượng sản phẩm của mình, Công Ty CP ĐT SX TM Kiến Vương vừa qua đã cùng hợp tác với chủ đầu tư Khách sạn trong khâu tư vấn thiết kế và thi công lắp đặt hệ thống thiết bị bếp khách sạn, nhà hàng cho Khách sạn Caravelle Sài Gòn.

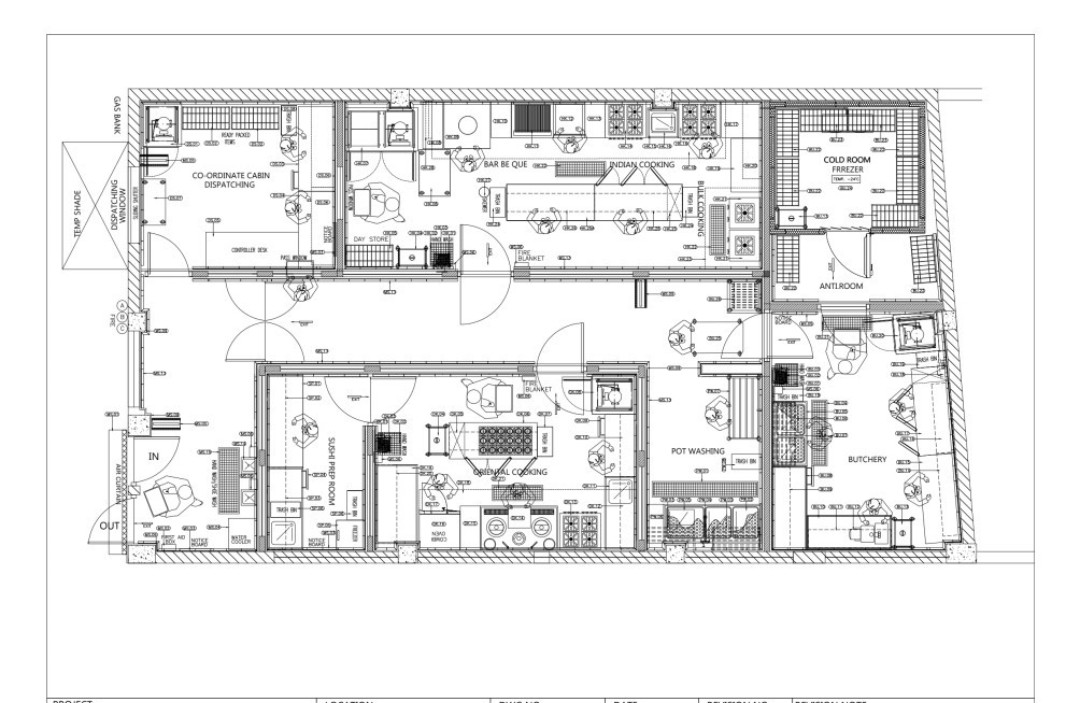
Bản vẽ thiết kế, bố trí thiết bị trong khu bếp



Thiết bị bếp khách sạn được Inox Kiến Vương cung cấp cho Camellia Restaurant luôn đảm bảo các công năng sử dụng cũng như đúng với nhu cầu thực tế trong quá trình hoạt động của Khách sạn Caravelle.
Liên hệ ngay với Inox Kiến Vương để nhận được sự tư vấn tốt nhất.
————————————————————————————————–
CÔNG TY CỔ PHẦN ĐẦU TƯ SẢN XUẤT THƯƠNG MẠI KIẾN VƯƠNG
HOTLINE : 0932101285-0932747485 Mr Thống
Xưởng sản xuất: Đường Số 25 An Phú Đông - P. An Phú Đông - Q.12 - TP.HCM
Office: Số 4 - Đường số 6 - Khu Phố 5 - P. Hiệp Bình Chánh - Q. Thủ Đức - TP.HCM
Website: http://bepkienvuong.com
Copyright © 2020 kienvuongco.com. All Right Reserved